Skip to content

MICHAEL KRACZEK THEATRE DESIGN

Theatre, Lighting Design, Set Design, Technical Design, and Theatre Consulting

  • Lighting Designs
  • Resume
  • Contact
  • Resources
    • Lighting Photometrics

Theater Consulting

The Pembroke Hill School

Posted on 2012-03-102015-06-05 by kraczek

Theater Consultant

Harvey Marshall Berling Associates

Kansas City, MO

Theater Rigging Plans & Section

Theater Seating Plans

Posted in Theater ConsultingTagged "consulting"Leave a comment

Junction City Opera House Renovation

Posted on 2012-02-282012-03-10 by kraczek

Theater Consultant

Harvey Marshall Berling Associates

Junction City Opera House, Kansas City, MO

Pit Filler & Stage Traps Plan + Section

Pit Filler & Stage Traps Elevations + Details

Theater Rigging Plans

Theater Rigging Section

Theater Lighting Distribution Riser + Schedule

Stage Lighting Dimming & Control Systems

Stage Lighting Fixtures

 

 

 

Posted in Theater ConsultingLeave a comment

Seton Hill University Performing Arts Center

Posted on 2012-02-282012-03-10 by kraczek

Concert Hall

 

Concert Hall Orchestra Pit Lift

Concert Hall Orchestra Pit Filler Platforms

Concert Hall Theater Rigging Plan + Section

Theater Rigging Operable Panel Details

Flexible Theater

Flexible Theater – Theater Lighting Plans

Theater Consultant

Harvey Marshall Berling Associates

Greensburg, PA

Posted in Theater ConsultingLeave a comment

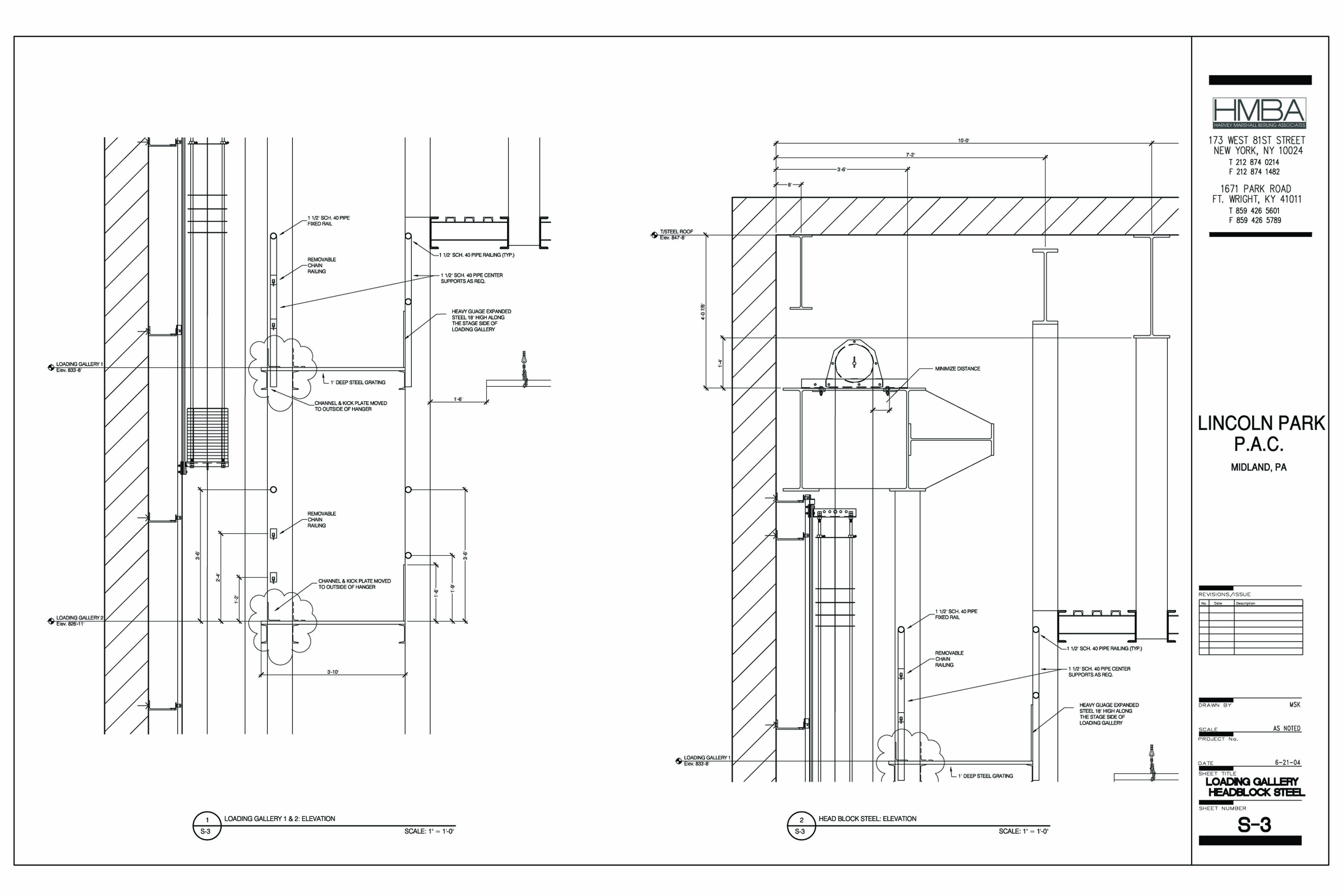
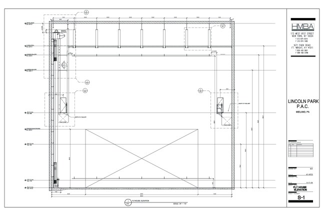
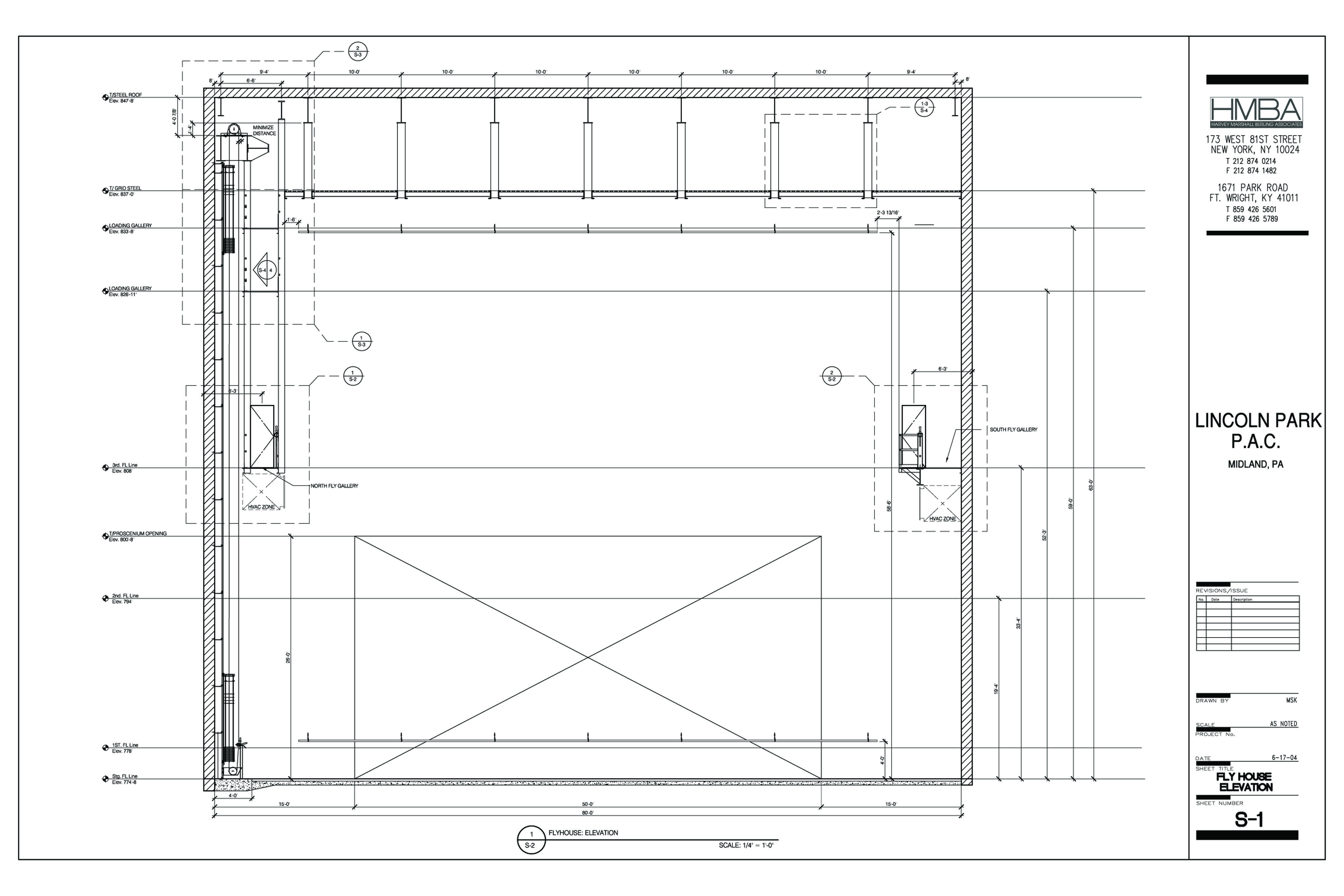
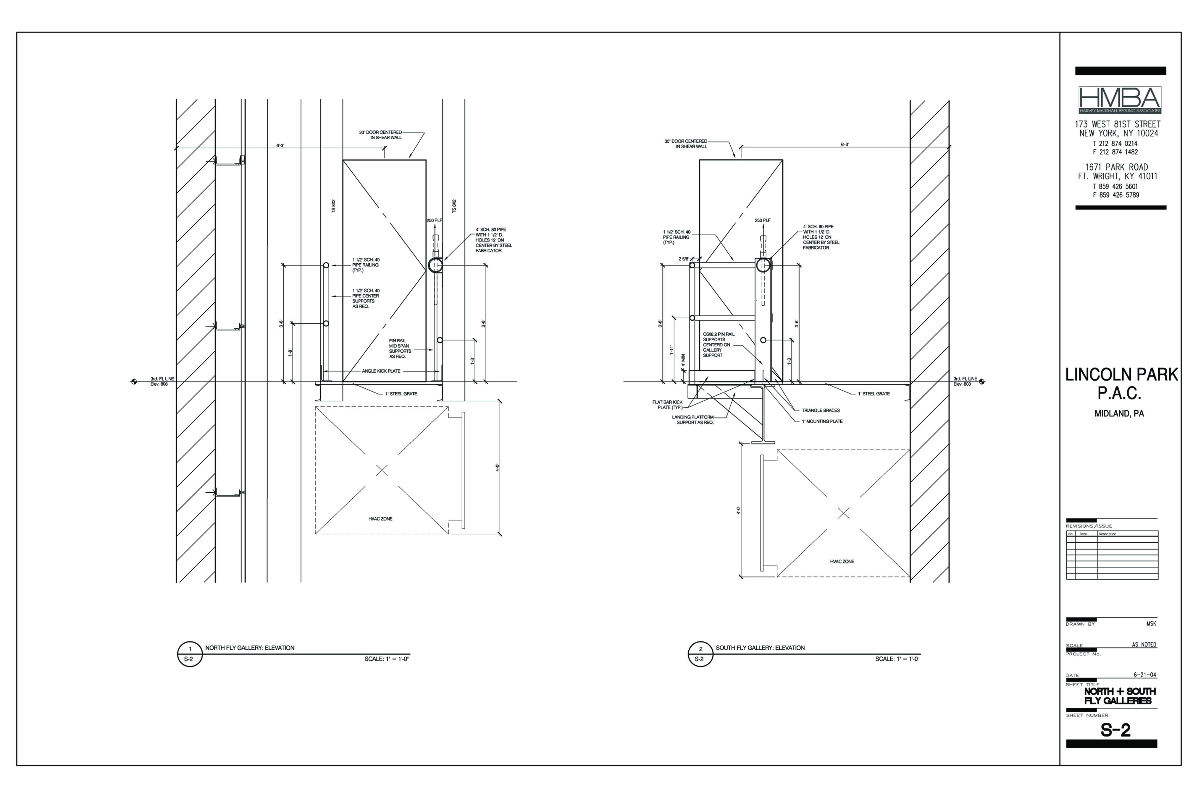
Lincoln Park Performing Arts Center

Posted on 2012-02-282012-03-10 by kraczek

Theater Consultant

Harvey Marshall Berling Associates

Midland, PA

Lincoln Park PAC Fly House Elevation

North + South Fly Galleries

Loading Gallery Headblock Steel

Posted in Theater ConsultingLeave a comment

Navigation

  • Lighting Designs
  • Resume
  • Contact
  • Resources
    • Lighting Photometrics
Website Powered by WordPress.com.
  • Subscribe Subscribed
    • MICHAEL KRACZEK THEATRE DESIGN
    • Already have a WordPress.com account? Log in now.
    • MICHAEL KRACZEK THEATRE DESIGN
    • Subscribe Subscribed
    • Sign up
    • Log in
    • Report this content
    • View site in Reader
    • Manage subscriptions
    • Collapse this bar

Loading Comments...